소개
신청·접수
아카이브
행사 일정
공지사항
로그인
회원가입
검색 레이어 열기
신청·접수
아카이브
검색
전체 메뉴 열기
로그인
회원가입
소개
신청·접수
아카이브
행사 일정
공지사항
전체 메뉴 닫기
설계공모
학교
제안공모
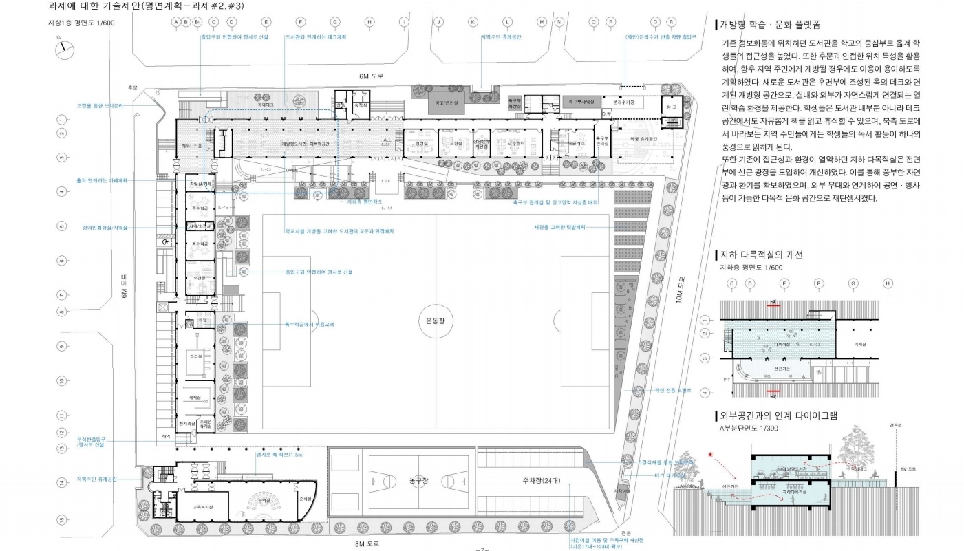
장평중 그린스마트미래학교 리모델링공사 제안 설계공모
결과발표
2025-09-19
전체기간
2025-07-30 ~ 2025-09-19
HOME
장평중 그린스마트미래학교 리모델링공사 제안 설계공모
당선·입상작
홈
공모일정
공모개요
참가안내
공지사항
당선·입상작
당선작
업체명
건축사사무소클라우드나인(주) / 한태희
공공누리
공공누리 4유형
입상작
입상 1등
업체명
아이앤아키텍츠건축사사무소(주) / 윤종인
공공누리
공공누리 4유형
입상 2등
업체명
(주)아인그룹건축사사무소 / 이채영
공공누리
공공누리 4유형
입상 3등
업체명
토브종합건축사사무소 / 김동영
업체명
스트레인지 건축사사무소 / 김낙훈
공공누리
공공누리 4유형
입상 4등
업체명
건축사사무소 스튜디오501 / 김민규
공공누리
공공누리 4유형
심사평
동부교육지원청
02-2210-1388 hajin09@sen.go.kr